Italiano
480.000 €

Via Lanza Di Scalea

Villa Bifamiliare in vendita • Palermo (Mondello) - via lanza di scalea, 2351
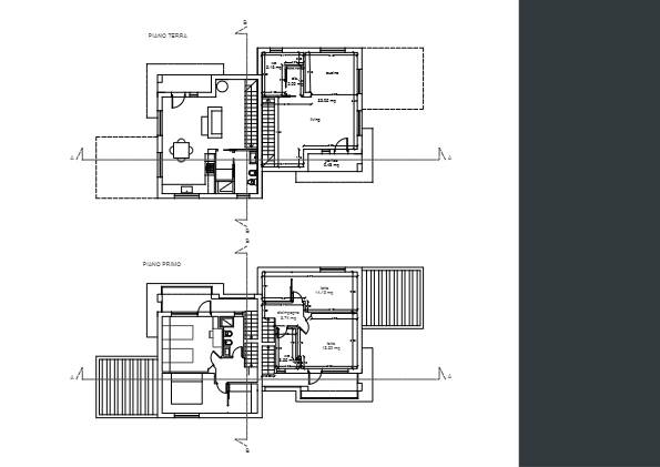
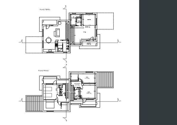
Via Lanza Di Scalea-vendesi porzioni di ville bifamiliari su due livelli. Le ville sono in costruzione e saranno così suddivise: piano terra, ingresso su zona living-cucina con portico, bagno ed antibagno; primo piano composta da una camera da letto con balcone , due camerette di cui una con balcone, bagno, oltre terrazzo sovrastante con locale tecnico con accesso scala interna. Le ville saranno consegnate chiavi in mano. Spazio esterno 280 mq ca .Possibilità di scelta dei materiali e divisione interna.
Caratteristiche principali
Codice
989
Città
Palermo (Mondello)
Categoria
Villa Bifamiliare
Prezzo
480.000 €
Locali
5
Camere
3
Bagni
2
Mq
110
Mq Giardino
280
Classe energetica
In fase di valutazione
Stato Immobile
In Costruzione
Grado
Medio
Posizione
Centro
Panorama
Vista Aperta
Lati Liberi
3
Giardino
Privato
Tipo Soggiorno
Doppio
Tipo Cucina
Semi Abitabile
Riscaldamento
Autonomo
Tipo Riscaldam.
Caldaia a Condensazione
Tipo Impianto
Radiatori
Fonte Energetica
Metano
Acqua Calda
Autonoma
Raffrescamento
Predisposizione
Pavim. Giorno
Gres Porcellanato
Pavim. Notte
Gres Porcellanato
Pavim. Cucina
Gres Porcellanato
Pavim. Bagno
Gres Porcellanato
Isolamento termico
Cappotto esterno
Mappa
via lanza di scalea 2351, Palermo (PA)
Condividi su
Cookie preference