Italiano
340.000 €

Ciachea

Villa Bifamiliare in vendita • Carini (Carini) - SS113
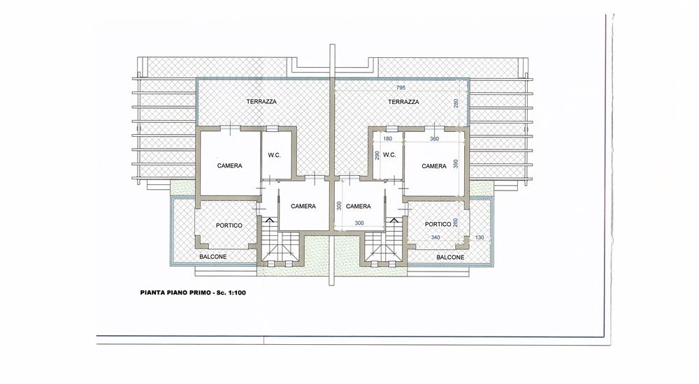
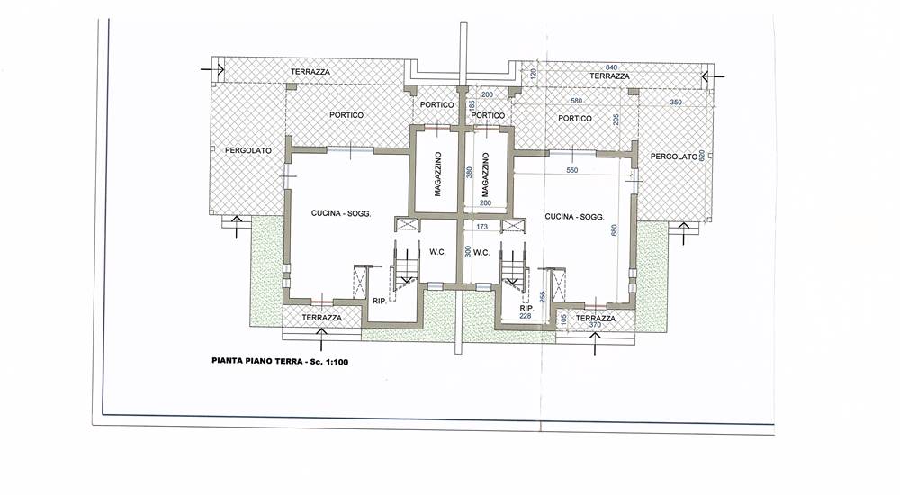
Carini- Ciachea-a due passi dallo svincolo autostradale, e dal centro commerciale Poseidon, vendesi , all'interno di un piccolo complesso residenziale , prossime realizzazioni, porzioni di ville bifamiliari su due livelli , oltre spazio esterno di 380 mq ca Le ville saranno così distribuite: piano terra: ingresso su soggiorno-cucina ed affaccio su portico e pergolato , con la possibilità di chiusura con Art. 20,bagno, ripostiglio e magazzino, primo piano, composto da una camera da letto e due camerette, di cui due con terrazza, ed una con balcone, bagno. le ville saranno consegnate chiavi in mano, possibilità di scelta dei materiali e divisione interna.
Caratteristiche principali
Codice
996
Città
Carini (Carini)
Categoria
Villa Bifamiliare
Prezzo
340.000 €
Locali
5
Camere
3
Bagni
2
Mq
138
Posti auto
2
Mq Giardino
380
Balconi
1
Terrazzi
2
mq Terrazzo
30
Classe energetica
In fase di valutazione
Stato Immobile
In Costruzione
Grado
Medio
Posizione
Centro
Panorama
Vista Aperta
Lati Liberi
3
Giardino
Privato
Tipo Soggiorno
Doppio
Tipo Cucina
A Vista
Riscaldamento
Autonomo
Tipo Riscaldam.
Caldaia a Condensazione
Tipo Impianto
Radiatori
Fonte Energetica
GPL
Acqua Calda
Autonoma
Raffrescamento
Predisposizione
Infissi
PVC Doppio Vetro
Serramenti
Nuovo
Pavim. Giorno
Gres Porcellanato
Pavim. Notte
Gres Porcellanato
Pavim. Cucina
Gres Porcellanato
Pavim. Bagno
Gres Porcellanato
Isolamento
Presente
Isolamento termico
Cappotto esterno
Impianto d’irrigazione
No

Accessori: Doppi Vetri, Impianto Fotovoltaico, Impianto Satellitare, Lavanderia, Pannelli Solari, Parco Condominiale, Passaggio Automobilistico, Passaggio Pedonale, Porta Blindata

Mappa
SS113 , Carini (PA)
Condividi su
Cookie preference